Skip to main content

Muñecas 1060

Villa Crespo

Ubicado en uno de los barrios más importantes para la Construcción de Buenos Aires.
Contando con nuevos emprendimientos en la zona y buscado por el turismo.

Nuevas corrientes comerciales potenciadas por la zona OUTLETS y su cercanía con el barrio Palermo.

El emprendimiento cuenta con una excelente ubicación a 15 min. del centro porteño por medio del Subte B, Metrobus y otras extensas líneas de colectivos.

Ademas esta rodeado de comercios, locales y confort de las nuevas corrientes y propuestas Gastronómicas en la zona y el nuevo microestadio Movistar Arena en la zona.

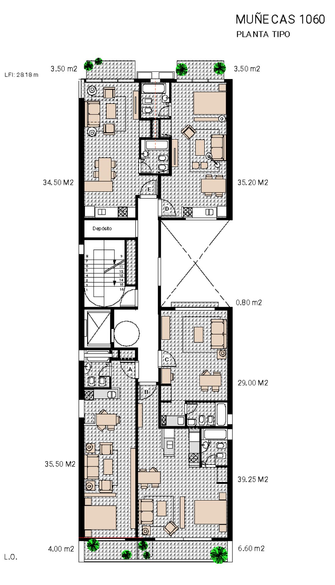
PLANTA TIPO

Departamento A: 39,50 m2
Departamento B: 45,85 m2
Departamento C: 29,80 m2
Departamento D: 38,70 m2
Departamento E: 38 m2
Departamento 8° A: 3 amb. 88,60 M2 (consultar)

EL EDIFICIO:

– Cocheras
– Terraza de usos múltiples
– Areas comunes, sala de máquinas

Terminación de los ambientes en enlucido de yeso en paredes, techos y cielorrasos suspendidos. Acabado final en pintura látex para interiores.

Revestimientos de cerámicos en baños y sectores de cocina.

Pisos flotantes en el área del estar, comedor y dormitorio. Cerámico de 1° marca en baños y cocinas.

Zócalos de madera en estar comedor y dormitorio.

Cerámicos en baños y áreas de cocina.

Carpinterías de madera en alacenas y bajo mesada, revestidas en melamina. Puertas de acceso, interiores y de placares revestidas en roble nacional.

Carpinterías exteriores en aluminio anodizado.

Instalaciones eléctricas, incluyen telefonía y cablemódem.

Instalaciones sanitarias, bacha de cocina de acero inoxidable (Johnson o similar), artefactos sanitarios (Ferrum o similar), griferías (FV o similar monocomando).

Muñecas 1060

  • Ubicado en uno de los barrios más importantes para la Construcción de Buenos Aires.
    Contando con nuevos emprendimientos en la zona y buscado por el turismo.

    Nuevas corrientes comerciales potenciadas por la zona OUTLETS y su cercanía con el barrio Palermo.

    El emprendimiento cuenta con una excelente ubicación a 15 min. del centro porteño por medio del Subte B, Metrobus y otras extensas líneas de colectivos.

    Ademas esta rodeado de comercios, locales y confort de las nuevas corrientes y propuestas Gastronómicas en la zona y el nuevo microestadio Movistar Arena en la zona.

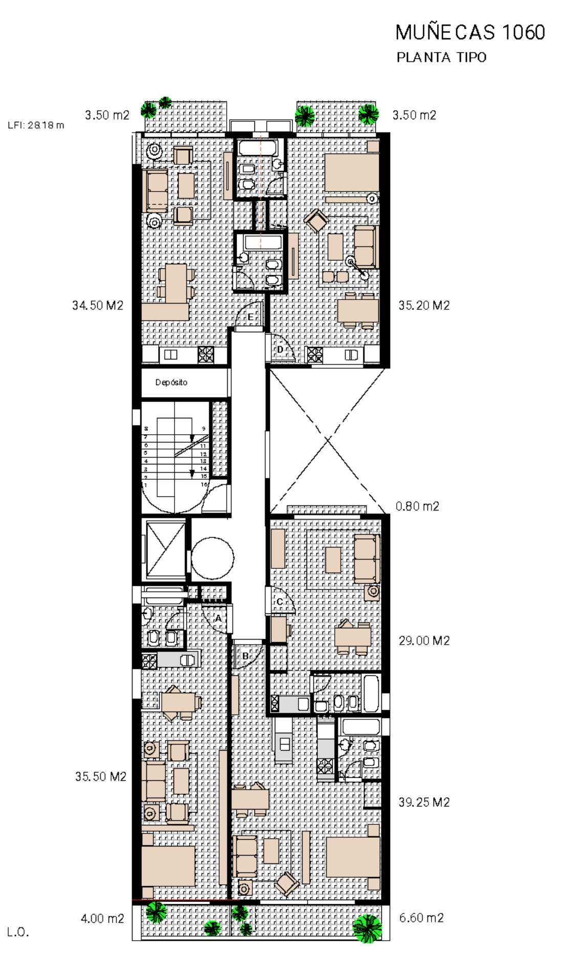
  • PLANTA TIPO

    Departamento A: 39,50 m2
    Departamento B: 45,85 m2
    Departamento C: 29,80 m2
    Departamento D: 38,70 m2
    Departamento E: 38 m2
    Departamento 8° A: 3 amb. 88,60 M2 (consultar)

    EL EDIFICIO:

    – Cocheras
    – Terraza de usos múltiples
    – Areas comunes, sala de máquinas

  • Terminación de los ambientes en enlucido de yeso en paredes, techos y cielorrasos suspendidos. Acabado final en pintura látex para interiores.

    Revestimientos de cerámicos en baños y sectores de cocina.

    Pisos flotantes en el área del estar, comedor y dormitorio. Cerámico de 1° marca en baños y cocinas.

    Zócalos de madera en estar comedor y dormitorio.

    Cerámicos en baños y áreas de cocina.

    Carpinterías de madera en alacenas y bajo mesada, revestidas en melamina. Puertas de acceso, interiores y de placares revestidas en roble nacional.

    Carpinterías exteriores en aluminio anodizado.

    Instalaciones eléctricas, incluyen telefonía y cablemódem.

    Instalaciones sanitarias, bacha de cocina de acero inoxidable (Johnson o similar), artefactos sanitarios (Ferrum o similar), griferías (FV o similar monocomando).

  • wp-content/uploads/2024/04/comarca-emprendimientos-munecas-1060-plano-1.jpg
  • wp-content/uploads/2024/04/comarca-emprendimientos-munecas-1060-4.jpg